ATENÇÃO Este site utiliza cookies. Ao navegar no site estará a consentir a sua utilização. Saiba mais sobre o uso de cookies.

Apartamento 3 Quartos

Gondomar (São Cosme), Valbom e Jovim, Gondomar (Porto)

430 000€

Descrição

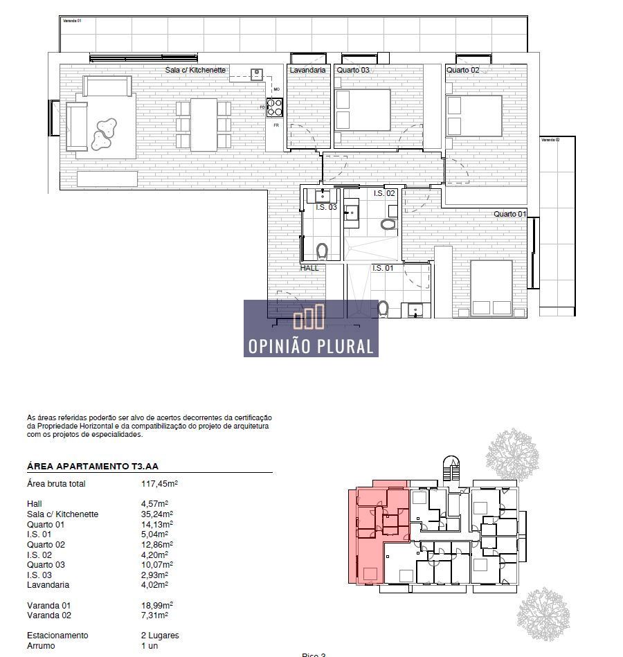
Apartamento T3 (AA) Novo com Varanda, Garagem Dupla, Arrumos e Acabamentos de Luxo
Haven Terrazza | Valbom – Gondomar

Apresentamos um apartamento T3 novo, com varanda, garagem para 2 veículos e arrumos com acabamentos de elevada qualidade, inserido no prestigiado empreendimento Haven Terrazza, um projeto residencial de segmento premium localizado na freguesia de Valbom, concelho de Gondomar, a escassos minutos do Porto.
Habitação contemporânea com identidade, conforto e exclusividade
O Haven Terrazza foi concebido para redefinir o conceito de habitação moderna em Valbom, afirmando-se como um empreendimento de referência, onde a arquitetura contemporânea, o conforto e a qualidade construtiva se conjugam para proporcionar uma experiência residencial distinta.
Implantado numa zona elevada e privilegiada, este condomínio privado distingue-se pela sua localização estratégica, oferecendo vistas amplas e desafogadas sobre o Porto, Vila Nova de Gaia, o rio Douro, zonas verdes e a envolvente urbana.
Mais do que um espaço para habitar, o Haven Terrazza é um projeto pensado ao detalhe, que valoriza o design, a funcionalidade e a exclusividade, proporcionando um equilíbrio perfeito entre privacidade, elegância e bem-estar.
Com linhas arquitetónicas modernas e uma implantação cuidada, apresenta-se como a escolha ideal para quem valoriza qualidade de vida, proximidade à cidade e uma envolvente rica em conveniências, sem abdicar da tranquilidade.

Um Empreendimento de Excelência
O Haven Terrazza distingue-se pelos seus elevados padrões de qualidade, sofisticação e atenção ao detalhe, evidentes tanto na construção como nos acabamentos.
O empreendimento é composto por 30 frações habitacionais, distribuídas pelas tipologias T1, T2 e T3, todas com:
• Áreas amplas e bem distribuídas
• Excelente luminosidade natural
• Varandas generosas, ideais para momentos de lazer e convívio
Tudo em perfeita harmonia com um ambiente de tranquilidade e conforto.

Localização Privilegiada
Situado em Valbom, o empreendimento beneficia de uma localização estratégica:
• A cerca de 3 km do centro de Gondomar
• A aproximadamente 10 minutos do centro do Porto
• A cerca de 20 minutos do Aeroporto Francisco Sá Carneiro
A envolvente é calma e aprazível, contando com uma vasta oferta de comércio, serviços e equipamentos, nomeadamente:
• Bancos, farmácias, escolas básicas e secundárias e hipermercados
• Piscinas e Pavilhão Municipal de Valbom
• Diversas opções de transporte público
• Proximidade à Marina do Freixo (≈ 3 km)
• A aproximadamente 8 km do Aeroporto Internacional Dr. Francisco Sá Carneiro

Excelentes Acessibilidades
A localização permite rápidos e eficientes acessos aos principais eixos rodoviários — A3, A4, A28 e A44 — garantindo ligações diretas ao Porto, Braga, Vila Nova de Gaia e Lisboa.

Obra e Prazos
• Início da construção: 1.º trimestre de 2026
• Conclusão prevista: dezembro de 2028
• Prazo estimado de entrega: 24 meses após o início da obra
• Durante a fase de construção, existe a possibilidade de personalização dos acabamentos interiores, permitindo adaptar o apartamento ao seu gosto e estilo de vida.

Detalhes Técnicos e Acabamentos de Elevada Qualidade

Estrutura e Isolamento
• Fachadas ventiladas com isolamento térmico em pedra natural ou mosaico imitação de pedra
• Cobertura plana
• Caixilharia em alumínio anodizado com corte térmico e vidro duplo
• Isolamento acústico entre frações com lã mineral
• Isolamento térmico em poliestireno extrudido nas paredes exteriores
• Isolamento acústico entre pavimentos com tela de polietileno

Conforto e Funcionalidade
• Vídeo porteiro a cores
• Estores blackout elétricos nos quartos
• Portões seccionados automáticos com comando à distância
• Sistema de ventilação mecânica
• Climatização por ar condicionado
• Bomba de calor para produção de águas quentes sanitárias (AQS)
• Tetos falsos em todo o apartamento, com sancas para cortinados e iluminação LED embutida

Materiais e Design
• Pavimento vinílico flutuante em halls, quartos, sala e cozinha
• Carpintaria lacada, portas de altura total e dobradiças ocultas
• Cozinhas totalmente equipadas com:
• Móveis lacados
• Tampo e lava-loiça em Krion branco da Porcelanosa ou equivalente
• Torneiras Bruma ou equivalente
• Eletrodomésticos Siemens ou equivalente: placa de indução, forno, micro-ondas, frigorífico combinado, máquina de lavar loiça e exaustor
• Lavandaria independente

Espaços Interiores
• Três quartos, sendo um deles suite, com closet e roupeiros embutidos e acesso direto à varanda
• Sala ampla em open space, com acesso direto á varanda com excelente luminosidade natural
• Instalações sanitárias com:
• Revestimento cerâmico retificado
• Louças sanitárias suspensas
• Base de duche com resguardo em vidro temperado
• Lavatório de pousar e misturadoras monocomando
________________________________________
Garagem e Sustentabilidade
• Lugar de garagem para 2 veículos e arrumos com ponto de carregamento para veículos elétricos
• Classificação energética A, refletindo o compromisso com a eficiência energética e a sustentabilidade
________________________________________
Notas Importantes
• As imagens apresentadas são meramente ilustrativas e não vinculativas, podendo sofrer alterações de caráter técnico, legal ou comercial
• As áreas indicadas são aproximadas, correspondendo a áreas brutas e úteis privativas
________________________________________
Conclusão
O Haven Terrazza é a escolha ideal para quem procura um estilo de vida moderno, confortável e sofisticado, reunindo todas as condições para uma vivência de elevada qualidade, num ambiente seguro, bem localizado e com forte potencial de valorização.
Um investimento seguro e uma oportunidade única no mercado imobiliário da região.




Detalhes

  • JS534HVTAA
  • Compra
  • Em construção
  • 143 m²
  • 117 m²
  • 10, 13, 14 m²
  • 3
  • 3
  • 2
  • 2026

Localização

Pedido de Informações

Esclareça as suas dúvidas acerca do imóvel

Características

Classificação Energética

  • Classificação: ;

Empreendimento

  • Elevadores:
    • Normais: ;
  • Nº Pisos: ;

Exterior

  • Árvores: ;
  • Jardim:
    • Interior: ;
  • Muro: ;
  • Nº Frentes: ;
  • Orientação solar:
    • Nascente: ;
  • Estado:
    • Novo: ;
  • Visibilidade:
    • Boa: ;

Outros

  • Piso:
    • Outro: ;

Estacionamento

  • Lugar de garagem:
    • Interior: ;
  • Nº de carros: ;
  • Portão de garagem:
    • Automático: ;

Climatização e conforto

  • Ar Condicionado:
    • Completo: ;
  • Aquecimento água:
    • Eléctrico: ;
  • Caixilharia:
    • Alumínio: ;
    • Vidros duplos: ;
  • Tv por cabo: ;
  • Estores eléctricos: ;
  • Gás canalizado:
    • Completo: ;
  • Ventilação mecânica: ;
  • Aquecimento Térmico:
    • Eléctrico: ;

Domótica e Segurança

  • Video-porteiro: ;
  • Porta de segurança: ;
  • Câmara de segurança: ;

Divisões

  • Quartos :
    • Com WC (Suite): ;
    • Pavimento: ;
    • Tectos:
      • Tecto falso com focos: ;
  • Salas:
    • Área: ;
    • Pavimento: ;
    • Tectos:
      • Tecto falso com focos: ;
  • Átrio:
    • Área: ;
    • Pavimento: ;
    • Tectos:
      • Tecto falso com focos: ;
  • Cozinha:
    • Microondas: ;
    • Frigorifico: ;
    • Exaustor: ;
    • Máquina lavar louça: ;
    • Área: ;
    • Pavimento: ;
    • Móveis: ;
    • Placa e forno: ;
  • WC´s :
    • Privados: ;
    • Completo: ;
    • Serviço: ;
  • Varandas:
    • Nº: ;
    • Área: ;
  • Roupeiros:
    • Closets: ;
    • Roupeiros embutidos: ;
  • Lavandaria: ;

Enquadramento

  • Escolas: ;
  • Transportes públicos: ;
  • Supermercados e comércio: ;
  • Hospitais clínicas e farmácias: ;
  • Acessos :
    • Transportes públicos: ;
    • Metro: ;
    • Auto-estrada: ;
  • Localização:
    • Centro: ;
  • Serviços:
    • Centro Comercial: ;
    • Supermercados: ;
    • Bancos: ;
    • Correios: ;
    • Farmácia: ;
    • Hospital: ;
    • Escolas: ;
    • Infantário: ;
    • Lar de terceira idade: ;
    • Universidade: ;
    • Centro de Saúde: ;
    • Polícia: ;
  • Vistas:
    • Cidade: ;
  • Zona envolvente:
    • Residencial: ;